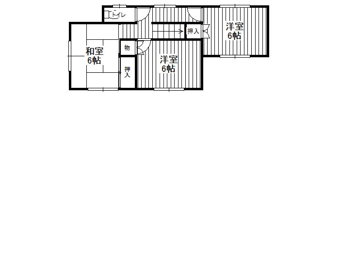
2F